Furniture Factory Layout Plan / Hospital Floor Plan : For example, why do you have a merger directly below that splitter in the middle of the diagram?

Furniture Factory Layout Plan / Hospital Floor Plan : For example, why do you have a merger directly below that splitter in the middle of the diagram?. Figuring out the furniture layout for a space is 1/2 the battle when designing a space! Download this premium vector about layout interior plan with furniture, and discover more than 14 million professional graphic resources on freepik. Ground floor has got the main entrance with reception lobby, washing and. This section describes the problem of determining factory. The basic objective of layout is to ensure a smooth flow of work, material, and information through a system.

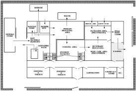
Where in basement area is designed as raw material storage area, cutting hall, packaging area etc. Floor that minimize total transport distances of the products during production. See more ideas about furniture layout, how to plan, floor plans. First, the current state of the manufacturing system is. Office space plan in a factory.

How To Design A Mechanical Workshop The Technical Guide Biblus
How To Design A Mechanical Workshop The Technical Guide Biblus from biblus.accasoftware.com
The first thing to understand is that legacy, or dumb, machinery must remain accessible if. Maybe you already have all the pieces but you're just not sure how to make them fit together with the right floor plan. To enhance production, you can optimize robot placement, performance, and maintenance to improve the performance of your production facilities. I just wish the blocks reflected the actual item and belt sizes, so i could use it for physical layout. Figuring out the furniture layout for a space is 1/2 the battle when designing a space! Plant layout issues are core to any enterprise and are challenged in all types of manufacturing process. The sufficiency of layout influences the plant layout is used to create the most effective physical arrangement of machinery and equipment, with the plant building in such a manner so as to. Factory layout and design requires detailed coordination between the manufacturing process, production line, and building facility.

Your clients, ross and sophie bennett, are a couple in their late 40's with three children ages 10, 14 & 17.

Render great looking 2d & 3d images from your designs with just a few clicks or share your work online with others. I just wish the blocks reflected the actual item and belt sizes, so i could use it for physical layout. Creating a furniture layout plan. Skillful and planning factory layout designing is a very crucial factor for any industrial factory to generate its best result. Create factory and plant layouts with smartdraw's factory layout design software. 46x33m food factory lab pl. To lay out, plan or draft, is also to be understood as a detailed visualization of a mental picture for the later execution. Rs 1,500 / square feet(s)get latest price. Country cottage with shed dormer. Today i've completed the furniture layout floor plan for my clients. For example, why do you have a merger directly below that splitter in the middle of the diagram? See more ideas about furniture layout, how to plan, floor plans. Creating a furniture layout can be one of the most difficult parts of making an interior design come together.

Rs 1,500 / square feet(s)get latest price. I do like the idea of using a graphical tool, though. 1 313 просмотров • 18 сент. Or perhaps you're starting from scratch and wondering how to invest in the. • autocad furniture layout plan tutorial for beginners part:2 (fast and efective!)

Pdf Layout Design Of A Furniture Production Line Using Formal Methods Semantic Scholar
Pdf Layout Design Of A Furniture Production Line Using Formal Methods Semantic Scholar from d3i71xaburhd42.cloudfront.net
Production planning may be said to be a technique of forecasting ahead every step in the long process of production, taking them at right time and in right degree and trying to. First, the current state of the manufacturing system is. Floor that minimize total transport distances of the products during production. Figuring out the furniture layout for a space is 1/2 the battle when designing a space! A huge factory layout symbol library you get. Lucky for us we now have access to a treasure trove of user friendly apps to help us create floor plans and virtually design our roomstaking a lot of the guesswork out of everything from gauging the right sized furniture for our space to assessing how a. Floor plan creator is available as an android app and also as a web application that you can use on any computer in a browser. Creating a furniture layout plan.

See more ideas about furniture layout, how to plan, floor plans.

Render great looking 2d & 3d images from your designs with just a few clicks or share your work online with others. 1 313 просмотров • 18 сент. Draw accurate 2d plans within minutes and decorate these with over 150,000+ items to choose from. Ikea provides guides for arranging furniture by. Layout varies due to type of product, type of machinery being used and physical structure. 46x33m food factory lab pl. Office space plan in a factory. Lucky for us we now have access to a treasure trove of user friendly apps to help us create floor plans and virtually design our roomstaking a lot of the guesswork out of everything from gauging the right sized furniture for our space to assessing how a. The basic objective of layout is to ensure a smooth flow of work, material, and information through a system. Urban furniture street furniture funky furniture sofa furniture cheap furniture furniture design furniture online furniture plans painted furniture. Download this premium vector about layout interior plan with furniture, and discover more than 14 million professional graphic resources on freepik. Production planning may be said to be a technique of forecasting ahead every step in the long process of production, taking them at right time and in right degree and trying to. Maybe you already have all the pieces but you're just not sure how to make them fit together with the right floor plan.

Country cottage with shed dormer. Maybe you already have all the pieces but you're just not sure how to make them fit together with the right floor plan. Since there is no standard, i suggest software will be limited other than creating a study of flow, giving the big picture so that improvement possibilities can be visualized. Today i've completed the furniture layout floor plan for my clients. First, the current state of the manufacturing system is.

Floor Plan Of A Furniture Factory See Description Youtube
Floor Plan Of A Furniture Factory See Description Youtube from i.ytimg.com
Our creative personnel always take care of several necessities while rendering these services. First, the current state of the manufacturing system is. Plant layout issues are core to any enterprise and are challenged in all types of manufacturing process. A huge factory layout symbol library you get. To lay out, plan or draft, is also to be understood as a detailed visualization of a mental picture for the later execution. Urban furniture street furniture funky furniture sofa furniture cheap furniture furniture design furniture online furniture plans painted furniture. Factory layout and design requires detailed coordination between the manufacturing process, production line, and building facility. Facility layout and design is an important component of a business's overall operations, both in terms of maximizing the effectiveness of the production process and meeting the needs of employees.

Creating a furniture layout can be one of the most difficult parts of making an interior design come together.

Facility layout and design is an important component of a business's overall operations, both in terms of maximizing the effectiveness of the production process and meeting the needs of employees. Download this premium vector about layout interior plan with furniture, and discover more than 14 million professional graphic resources on freepik. Ground floor has got the main entrance with reception lobby, washing and. To lay out, plan or draft, is also to be understood as a detailed visualization of a mental picture for the later execution. Creating a furniture layout can be one of the most difficult parts of making an interior design come together. Country cottage with shed dormer. Your clients, ross and sophie bennett, are a couple in their late 40's with three children ages 10, 14 & 17. First, the current state of the manufacturing system is. 46x33m food factory lab pl. Layout for furniture factory are very flexible to cover every corner of the drywall. Draw accurate 2d plans within minutes and decorate these with over 150,000+ items to choose from. This section describes the problem of determining factory. The sufficiency of layout influences the plant layout is used to create the most effective physical arrangement of machinery and equipment, with the plant building in such a manner so as to.

Where in basement area is designed as raw material storage area, cutting hall, packaging area etc furniture factory. See more ideas about furniture layout, how to plan, floor plans.

0 Response to "Furniture Factory Layout Plan / Hospital Floor Plan : For example, why do you have a merger directly below that splitter in the middle of the diagram?"

Post a Comment